Main Floor












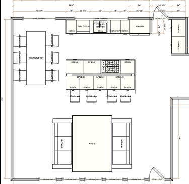
Brandley Provo Home Remodel
This 1981 Provo home had remained completely original for decades. After owning the home for nearly ten years, the Brandley family envisioned a full transformation, one that elevated the home's functionality, flow, and design to better support their lifestyle.
Basement






